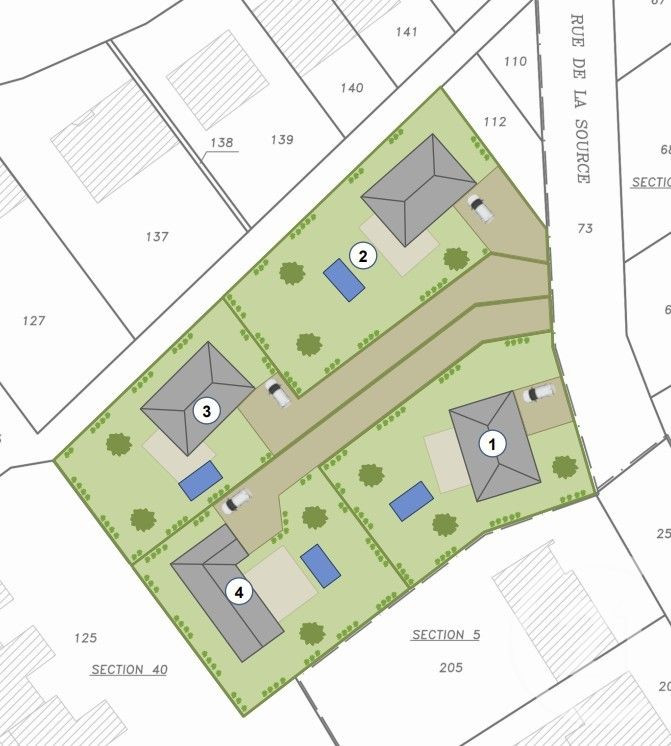
Terrain
128 000 € 
                                                                         
                                                            Description :
Terrain Constructible à METZERESCHE (57920) 6ares 96ca
Offrez-vous l'opportunité de bâtir votre maison dans un village calme et dynamique !
Emplacement idéal : Proche des transports, écoles, commerces et espaces verts.
Cadre de vie agréable : Tranquillité et confort au quotidien.
Infrastructures à proximité : Services de santé et Internet haut débit disponibles.
Contactez-nous dès maintenant pour plus d'informations Prix : 128000.0  euros, Honoraires charge vendeur.
Prix : 128 000 €
Surface : 696.0 m2
Vendu par : Professionnel
Type : Offre
Localisation : 57920 METZERESCHE,
Catégories : Vente Terrain
 Créez votre petite annonce sur Allyoucanpost.com et diffusez la gratuitement et en 1 clic sur : 
                                 - des sites de petites annonces 
                                 - les réseaux sociaux 
                                 - par email 
                               
 
                         
                    