Terrain
1 040 000 € 
                                                                         
                                                                         
                                                                         
                                                                         
                                                                         
                                                            Description :
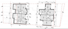
Votre cabinet La Clef à Bagneux vous propose un magnifique terrain de 442 m² en cours de construction avec plusieurs possibilités. Vous pouvez choisir de poursuivre le projet actuel, avec un transfert de permis de construire, en collaboration avec le vendeur ou en rachat total. Il est également envisageable de concevoir un nouveau projet en achetant les deux terrains attenants des voisins, permettant ainsi un projet immobilier de plus grande envergure. Le projet en cours prévoit la construction de 4 maisons d’environ 82 m² chacune. Les travaux déjà réalisés incluent le terrassement, les fondations, les réseaux ainsi que le raccordement aux eaux usées et aux eaux pluviales.
Une opportunité rare à ne pas manquer pour concrétiser vos ambitions immobilières.
N'hesitez pas à nous contacter pour plus d'informations ou pour planifier une viste de ce superbe terrain.
Référence interne : 504
Prix : 1 040 000 €
Surface : 0 m2
Nombre de pièce(s) : 0
Nombre de Chambres : 0
Constructible : Oui
Meublé : Non
Vendu par : Professionnel
Type : Offre
Localisation : 92220 Bagneux, France
Catégories : Vente Terrain
 Créez votre petite annonce sur Allyoucanpost.com et diffusez la gratuitement et en 1 clic sur : 
                                 - des sites de petites annonces 
                                 - les réseaux sociaux 
                                 - par email 
                               
 
                         
                     
                     
                     
                     
                    