.
830 000 €





Description :
DOMAINE PRIVE - HAUTEUR DE SAINT-LAURENT DU VAR
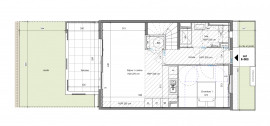
Située au sein d’un domaine privé de bon standing, sur les hauteurs de Saint-Laurent-du-Var, découvrez cette maison individuelle de cinq pièces élevée d’un étage.
Au rez-de-jardin, un séjour lumineux avec cuisine aménagée, une chambre, ainsi que d’une salle de douche avec WC.
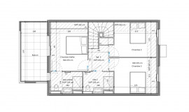
À l’étage, la partie nuit se compose de deux chambres, d’une salle de douche avec WC, ainsi que d’une suite parentale avec salle de douche, son WC et balcon offrant une vue dégagée.
A l’extérieur, une terrasse et un jardin.
Deux stationnements viennent compléter ce bien.
À découvrir sans tarder !
Les informations sur les risques auxquels ce bien est exposé sont disponibles sur le site géorisques :
www.georisques.gouv.fr
Prix : 830 000 €
Surface : 103.66 m2
Nombre de pièce(s) : 5
Nombre de Chambres : 4
Meublé : Non
Vendu par : Professionnel
Type : Offre
Status : Disponible
Localisation : 06700 Saint Laurent Du Var, France
Catégories : Vente Maison
Créez votre petite annonce sur Allyoucanpost.com et diffusez la gratuitement et en 1 clic sur :
- des sites de petites annonces
- les réseaux sociaux
- par email