Appartement rare t3 paris 18ème
327 929 €
Description :
Dans une résidence moderne et dans un cadre exceptionnel mêlant nature et dynamisme citadin.
Une terrasse partagée prolonge les espaces de vie et offre un lieu de rencontre privilégié, avec vues dégagées sur Paris.
A proximité :
- A 6 minutes du métro ligne 12.
- A 9 minutes du tram T3B.
- A moins de 10 minutes des lignes de bus.
- A 13 minutes du RER E.
- A proximités des commerces et des écoles.
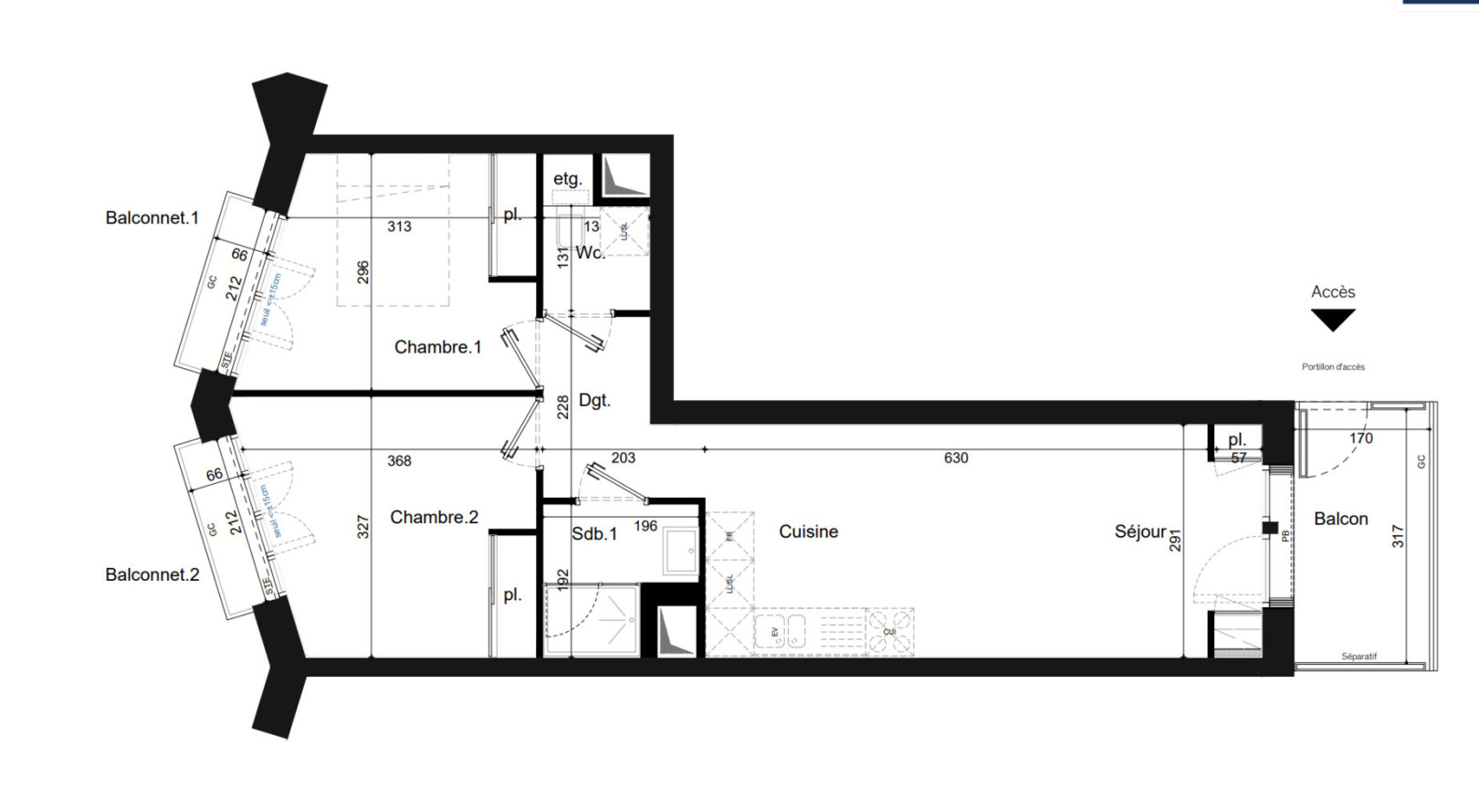
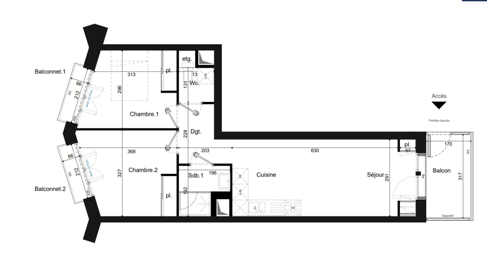
Cet appartement T3 de 49m2 se compose :
- d'un séjour/cuisine,
- de deux chambres,
- d'une salle de bain,
- de trois balcons
Le prix affiché est sur une TVA a 5,5% (voir si éligibilité).
Pour plus d'information, merci de nous contacter.
Référence interne : 75PARIINOPARB201
Prix : 327 929 €
Surface : 49 m2
Nombre de pièce(s) : 3
Consommation énergétique : B107
Émissions de gaz à effet de serre : B7
Nombre de Chambres : 2
Meublé : Non
Vendu par : Professionnel
Type : Offre
Localisation : 75018 Paris, France
Catégories : Vente Appartement
Créez votre petite annonce sur Allyoucanpost.com et diffusez la gratuitement et en 1 clic sur :
- des sites de petites annonces
- les réseaux sociaux
- par email