Appartement t2 au coeur du 15ème arrondisseme
740 000 €
Description :
Dans une résidence de standing et moderne au coeur du 15ème arrondissement de Paris et à quelques pas de la célèbre avenue de Breteuil.
A proximité :
- du métro ligne 6 (170m),
- du métro ligne 10 (210m),
- des lignes de bus (300m),
- des commerces et écoles.
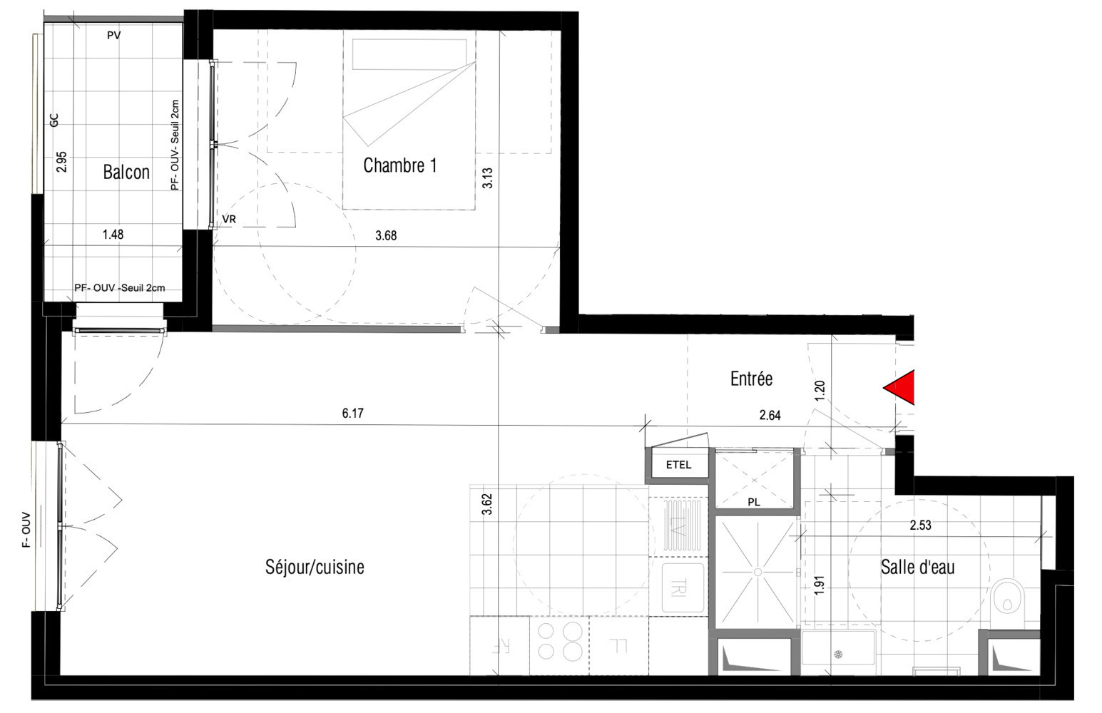
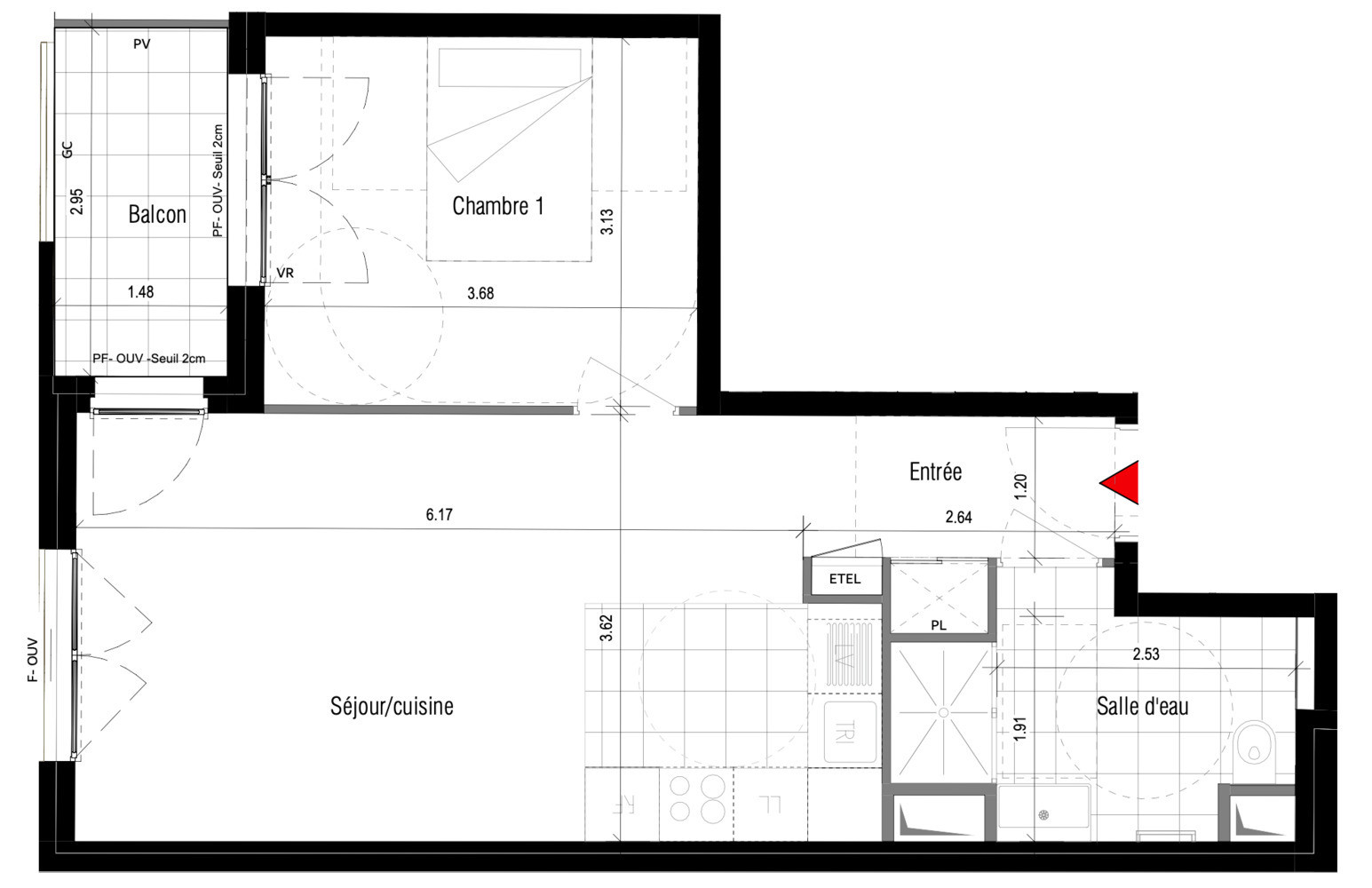
Cet appartement rare T2 de 45m2 se compose :
- d'une belle entrée de plus 3,70m2,
- d' une belle pièce de vie séjour/cuisine de plus de 23m2,
- d'une chambre donnant sur le balcon,
- d'une salle de douche de plus de 6m,
- d'un balcon de plus de 4m2.
Ce bien est vendu avec une cave.
Pour plus d'information, merci de nous contacter directement.
Référence interne : 75BOUGMERVEA202
Prix : 740 000 €
Surface : 44 m2
Nombre de pièce(s) : 2
Consommation énergétique : B107
Émissions de gaz à effet de serre : B7
Nombre de Chambres : 1
Meublé : Non
Vendu par : Professionnel
Type : Offre
Localisation : 75015 Paris, France
Catégories : Vente Appartement
Créez votre petite annonce sur Allyoucanpost.com et diffusez la gratuitement et en 1 clic sur :
- des sites de petites annonces
- les réseaux sociaux
- par email